Atendimento Whatsapp WEB
 

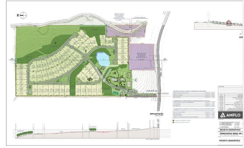
CONDOMÍNIO RESIDENCIAL DOM GENOR Cód. V586

Linha Paulina - RS 431, - Faria Lemos / RS
R$ 790.000,00
  • Área Total:800,00 m²

Área Total do Terreno 800,00m²

  • Academia
  • Área de Convivência
  • Jardim
  • Portaria 24h
  • Quadra de Areia
  • Quadra de Esportes
  • Salão de Festas

CONDOMÍNIO DOM GENOR é um condomínio residencial único.

Localizado em Faria Lemos.

Aqui, tradição e natureza foram preservados especialmente para você, proporcionando uma atmosfera de aconchego e pertencimento que nenhum outro lugar consegue oferecer.

O condomínio é constituído de 53 lotes com metragens que variam de 800,00 m² a 1000,00 m².

 

INFRAESTRUTURA:

 

- Quadra de Beach Tennis;

- Quadra de Padel;

- Quadra Poliesportiva;

- Academia;

- Salão de festas;

- Adega exclusiva;

- Ampla área de lazer integrada à natureza;

- Lago contemplativo com quiosque ao redor;

- Segurança 24 horas.

 

Lotes a partir de R$ 790.000,00.

 

Entre em contato conosco e saiba mais!

  LOCALIZAÇÃO - CONDOMÍNIO RESIDENCIAL DOM GENOR

Ver Rua

Usamos cookies para personalizar e melhorar a sua experiência. Ao navegar neste site, você concorda com a nossa Política de Privacidade.